
Situada al carrer Miquel Tort, al cor de Molins de Rei, aquesta exclusiva promoció d'obra nova representa una forma de vida on ubicació, disseny i qualitat s'uneixen en perfecte equilibri. Situada al centre neuràlgic del municipi, envoltada de tots els serveis, comerços i equipaments, gaudeix també de la tranquil·litat d'un carrer amb molt poc trànsit de vehicles, oferint confort sense renunciar a la calma.
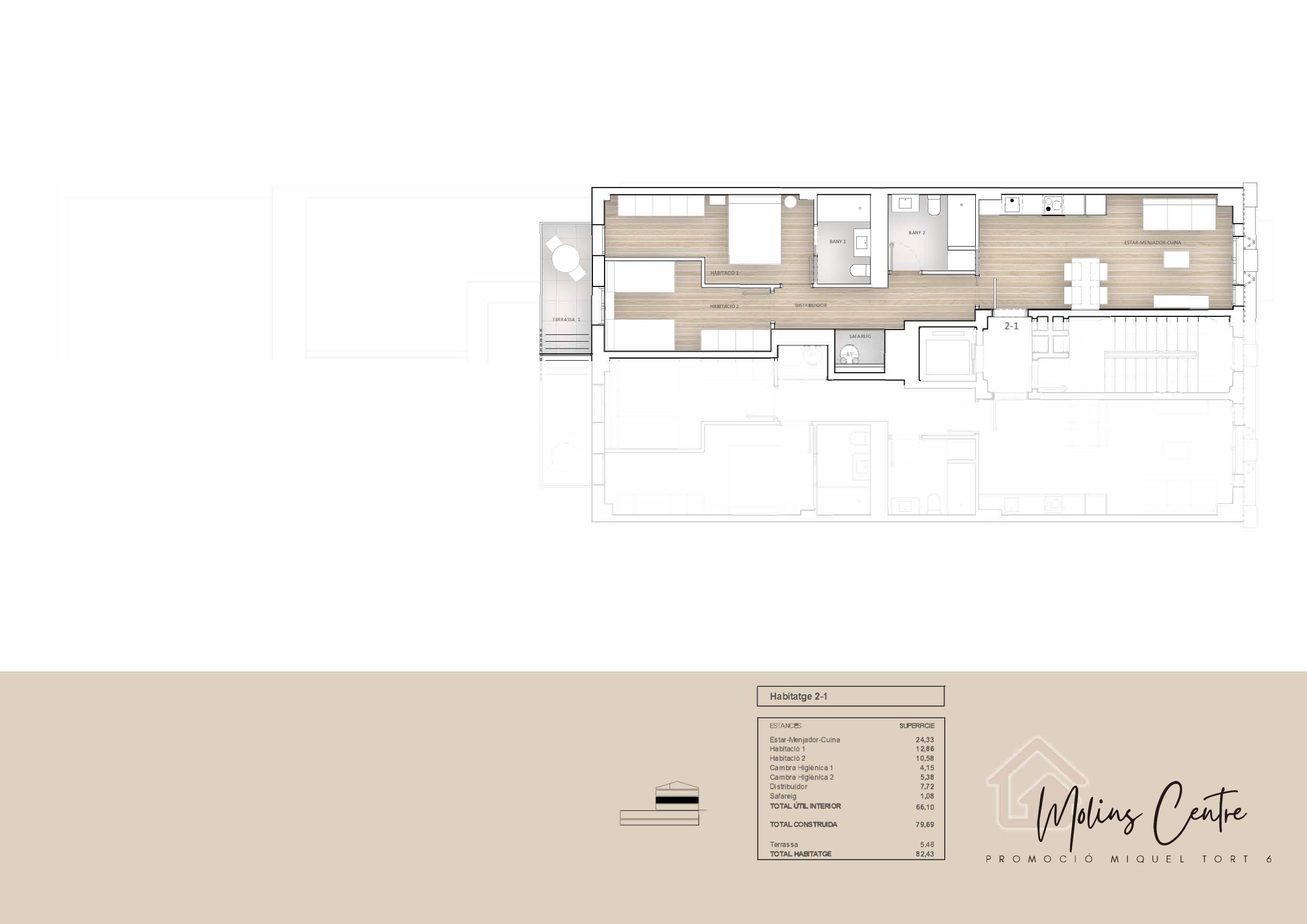
Es tracta d'una promoció de pocs habitatges, dissenyada amb una filosofia clara: prioritzar l'excel·lència constructiva i la qualitat dels acabats per sobre de tot. El projecte ofereix habitatges de 2 i 3 dormitoris, incloent plantes baixes i dúplex, dissenyats per adaptar-se a diferents estils de vida, tots ells amb una distribució funcional, lluminosa i contemporània.
Els acabats són, sens dubte, el gran valor diferencial d'aquesta obra: materials seleccionats amb cura, disseny contemporani i solucions tècniques d'alt nivell que garanteixen confort, durabilitat i estètica. Cada detall ha estat pensat per oferir una experiència residencial superior.
La promoció incorpora places d'aparcament i trasters, així com un conjunt complet de beneficis que reforcen el seu caràcter modern i sostenible:
Sistema de climatització per a una climatització eficient
Domòtica per a una llar intel·ligent i connectada
Preinstal·lació per a carregador de vehicle elèctric
Edifici i disseny sostenibles
Càmeres de vigilància a les zones comunes
Edifici cardioprotegit, apostant per la seguretat i el benestar
Parking-trastero (opcional)
Adreça: Código Postal: 08750
D'acord amb el que disposa el Reglament (UE) 2016/679 de 27 d'abril de 2016 (en endavant, "RGPD") i la Llei Orgànica de Protecció de Dades i de Garantia dels Drets Digitals (en endavant, “LOPDGDD”) 3/2018 de 5 de desembre, Promocat Indus S.L. vol que l’Usuari conegui quina és la Política de Privacitat aplicada respecte a les seves dades personals.
La pàgina web https://www.promocatindus.com/ és el domini d’Internet titularitat de Promocat Indus S.L.
Qui és el responsable del tractament de les seves dades?
Amb quina finalitat tractem les seves dades?
Quan de temps conservem les seves dades?
Conservem les seves dades el temps mínim que ens permet la llei, en funció de la finalitat de les dades recollides:
Quina és la legitimació pel tractament de les seves dades?
El seu consentiment donat de manera lliure al contractar algun servei amb nosaltres o al sol·licitar informació en algun dels formularis de la nostra web.
A quins destinataris comuniquem les seves dades?
Les seves dades no és comunicaran a tercers llevat d’obligació legal ni és realitzaran transferències internacionals
Quins son els seus drets?
Les persones interessades tenen dret a accedir a les seves dades de caràcter personal, així com, a sol·licitar la rectificació de dades inexactes o, en el seu cas, sol·licitar la suspensió quan, entre d’altres motius, les dades ja no siguin necessàries per la finalitat que van ser lliurades. Els exercicis de portabilitat i automatització de decisions no apliquen a la tipologia de dades i tractament de les mateixes.
L’exercici de drets anteriorment indicats es poden fer per dos canals:
En els dos casos anteriors, han de posar nom, cognom, còpia del DNI o passaport i si fos necessari les dades de la persona que el representi. Detall del que sol·licita i adreça on rebre la resposta, tant sigui postal com electrònica.
Li informem del seu dret de presentar una reclamació davant l’autoritat competent Agéncia Española de Protección de Datos, al telèfon 912 663 517 o a través de mitjans electrònics a https://www.aepd.es/es/la-agencia/en-que-podemos-ayudarte
Veracitat de les dades
Els usuaris són responsables de la veracitat de les seves dades, comprometent-se a no introduir dades falses i a procedir a la modificació de les mateixes si és necessari.
Titularitat
La pàgina web https://www.promocatindus.com/és el domini d’Internet titularitat de Promocat Indus S.L.
Qui és el responsable del tractament de les seves dades?
Copyright i drets de propietat intel·lectual
Tots els continguts, marques de serveis i logotips inclosos en aquesta pàgina web són propietat exclusiva de Promocat Indus S.L. També ho són el disseny, l’organització i la presentació de tots els continguts. Se’n prohibeix la seva utilització sense permís previ de Promocat Indus S.L. També se’n prohibeix la reproducció, la duplicació, la còpia, la venda, la revenda o l’aprofitament amb finalitats comercials. La infracció donarà lloc a les accions civils o penals que s’escaiguin, d’acord amb les lleis i els tractats internacionals en vigor.
La totalitat del contingut d’aquesta pàgina web, ja siguin textos, imatges, sons, fitxers, marques, logotips o qualsevol altre element i forma de presentació, i els programes d’ordinador necessaris pel seu funcionament, accés i utilització, estan protegits per la legislació vigent en matèria de propietat intel·lectual titularitat de Promocat Indus S.L. Es prohibeix la modificació, la còpia, la reproducció, la descàrrega, la transmissió, la distribució o la transformació dels continguts sense l’autorització del titular.
L’accés a la pàgina web no implica, en cap cas, l’adquisició per part dels usuaris de cap dret de propietat sobre els continguts que hi figuren. Alguns dels continguts de la pàgina web poden ser descarregats per l’usuari, sempre que sigui per a ús privat i sense finalitats comercials.
Continguts
Promocat Indus S.L. vetlla per evitar errors en els continguts que es publiquen en aquesta pàgina web i es reserva el dret de modificar els continguts en qualsevol moment. Promocat Indus S.L. no es responsabilitza de les conseqüències que es puguin derivar de les errades en els continguts que puguin aparèixer en aquesta pàgina web proporcionats per tercers.
Es prohibeix qualsevol comunicació o transmissió de continguts que infringeixi els drets de propietat de tercers i continguts que siguin amenaçadors, obscens, difamatoris, pornogràfics, xenòfobs, atemptatoris contra la dignitat de la persona o els drets de la infància, la legalitat vigent o qualsevol conducta que inciti o constitueixi la realització d’una ofensa penal.
Així mateix, es prohibeix la inclusió i la comunicació de continguts, per part dels usuaris, que siguin falsos o inexactes i que indueixin o puguin induir a error a la resta d’usuaris o el personal de Promocat Indus S.L., en particular els continguts que estiguin protegits per qualsevol dels drets de propietat intel·lectual o industrial.
Promocat Indus S.L. pot prohibir l’accés a aquesta pàgina web de qualsevol usuari que dugui a terme qualsevol de les conductes esmentades en els paràgrafs anteriors, que no són limitadors.
Promocat Indus S.L. pot oferir enllaços, directament o indirectament, a recursos o llocs d’Internet que estiguin fora d’aquesta pàgina web. La presència d’aquests enllaços té una finalitat informativa i no constitueix una invitació a la contractació dels productes o serveis que s’ofereixin a la pàgina web de destinació.
En cas que hi hagi qualsevol discrepància entre la informació administrativa facilitada a través d’aquesta pàgina web i els documents que constitueixen l’origen de la informació, preval allò que s’indica en aquests últims documents, l’edició impresa dels quals és l’únic instrument que dona fe de la seva autenticitat i contingut.
No es permet modificar aquesta pàgina web.
Navegació, seguretat i exclusió de responsabilitat
Promocat Indus S.L. no garanteix l’absència de virus o altres elements que puguin causar danys als sistemes informàtics, als documents electrònics o als fitxers d’usuaris d’aquesta pàgina web o de webs de tercers, per la qual cosa no es responsabilitza dels perjudicis que es puguin produir per aquestes causes. Promocat Indus S.L. no es responsabilitza del mal ús que es pugui fer d’aquesta pàgina web.
Aquest avís legal és aplicable únicament a la informació recollida i als serveis prestats a través de la pàgina web de Promocat Indus S.L.
Promocat Indus S.L. no garanteix ni es responsabilitza que l’accés a la pàgina web sigui ininterromput o estigui lliure d’errors i no es fa responsable dels perjudicis que puguin sorgir per l’accés i l’ús d’aquesta pàgina web.
Legislació aplicable i tribunals competents
Els termes i les condicions que regeixen aquesta pàgina web, com també les relacions que se’n puguin derivar, estan protegits i es regeixen en tots i cadascun dels seus extrems per les lleis de caràcter autonòmic, estatal o europeu que siguin aplicables.
Què són les cookies?
Una cookie és un fitxer que es descarrega al seu ordinador en accedir a unes pàgines web determinades. Les cookies permeten a una pàgina web, entre altres coses, emmagatzemar i recuperar informació sobre els hàbits de navegació d’un usuari o del seu equip i, depenent de la informació que continguin i de la manera com utilitzi el seu equip, es poden fer servir per reconèixer a l’usuari.
El navegador de l’usuari memoritza cookies al disc dur únicament durant la sessió en vigor, ocupen un espai de memòria mínim i no perjudiquen l’ordinador. Les cookies no contenen cap mena d’informació personal específica, i la majoria s’esborren del disc dur en finalitzar la sessió del navegador (les anomenades cookies de sessió).
La majoria dels navegadors accepten com a estàndard les cookies i, amb independència d’aquestes cookies, a la configuració de seguretat es permet o s’impedeix les cookies temporals o memoritzades.
Segons quina sigui l’entitat que gestioni el domini des d’on s’envien les cookies i tracti les dades que s’obtinguin, se’n poden distingir dos tipus: cookies pròpies i cookies de tercers. També hi ha una segona classificació segons el termini de temps que romanen emmagatzemades al navegador del client i, en aquest cas, es pot tractar de cookies de sessió o cookies persistents. Finalment, hi ha una altra classificació amb cinc (5) tipus de cookies segons la finalitat per a la qual es tractin les dades obtingudes: cookies tècniques, cookies de personalització, cookies d’anàlisi, cookies publicitàries i cookies de publicitat comportamental. Per a més informació, pot consultar la Guia sobre l’ús de les cookies de l’Agència Espanyola de Protecció de Dades.
Quins tipus de cookies utilitza aquesta pàgina web?
1) Cookies tècniques: Son aquelles necessàries pel bon funcionament de la web, si ha autoritzat les cookeis, l’idioma que ha triat i altres detalls tècnics.
2) Cookies d’anàlisi: són aquelles cookies que, tractades per nosaltres o per tercers, ens permeten quantificar el nombre d’usuaris i, d’aquesta manera, fer el mesurament i l’anàlisi estadística de la utilització que fan els usuaris del servei ofert. Per aquest motiu, s’analitza la seva navegació a la nostra pàgina web, amb la finalitat de millorar l’oferta de productes o serveis que posem a la seva disposició.
Aquesta pàgina web utilitza Google Analytics, un servei d’analítica web desenvolupat per Google, que permet mesurar i analitzar la navegació a les pàgines web. Al seu navegador podrà observar cinc (5) cookies d’aquest servei: _utma, _utmb, _utmc, _utmv i _utmz. Són cookies pròpies, de sessió i d’anàlisi. En pot trobar més informació i inhabilitar l’ús d’aquestes cookies a l’adreça següent: http://www.google.es/intl/es/analytics/privacyoverview.html
A través de l’analítica web s’obté informació relativa al nombre d’usuaris que accedeixen a la pàgina web, el nombre de pàgines vistes, la freqüència i la repetició de les visites, la durada, el navegador utilitzat, l’operador que presta el servei, l’idioma, el terminal que utilitza o la ciutat a la qual està assignada la seva adreça IP. Aquesta informació possibilita un servei millor i més apropiat per part d’aquesta pàgina web.
3) Cookies de tercers: la nostra pàgina web utilitza serveis de tercers que permeten millorar els serveis oferts. És el cas de Facebook (Lu, cuser, csm, fr, s, xs), amb la finalitat de poder mesurar les audiències en els continguts i oferir posteriorment recomanacions sobre els productes i els serveis a l’aplicació (es pot trobar més informació sobre l’ús de cookies de Facebook i com se’n pot suprimir l’activitat a www.facebook.com/help/cookies) i de Google Maps, que utilitza cookies per visualitzar ubicacions geogràfiques, que són gestionades completament per Google ( http://www.google.es/intl/es/policies/ ).
Acceptació de la Política de cookies
L’usuari accepta expressament, per a la utilització d’aquest lloc web, el tractament de la informació recollida segons la forma establerta anteriorment i amb les finalitats esmentades. D’aquesta manera, manifesta que coneix la possibilitat de rebutjar el tractament d’aquestes dades o informació rebutjant l’ús de cookies mitjançant la selecció de la configuració apropiada amb aquesta finalitat al seu navegador. No obstant, aquesta opció de bloqueig de cookies al seu navegador pot no permetre l’ús ple de totes les funcionalitats del lloc web.
Així, li mostrem informació sobre la Política de Cookies a les pàgines del lloc web per tal que en sigui conscient. Davant d’aquesta informació, és possible dur a terme les accions següents:
§ Acceptar totes les cookies, amb aquesta acció manifesta el consentiment.
§ Modificar la configuració. Acceptant o rebutjant les cookies que proposem. Pot obtenir més informació sobre què són les cookies, conèixer la Política de Cookies i modificar la configuració del seu navegador.
§ Rebutjar-les totes, menys les tècniques imprescindibles per la navegació per la nostra web.
Com es poden bloquejar o eliminar les cookies?
Vostè pot permetre, bloquejar o eliminar les cookies instal·lades al seu equip mitjançant la configuració de les opcions del navegador instal·lat al seu ordinador:
§ FireFox: https://support.mozilla.org/es/kb/habilitar-y-deshabilitar-cookies-sitios-web-rastrear-preferencias
§ Chrome: https://support.google.com/chrome/answer/95647?hl=es-es
§ Safari: https://apple.com/es/privacy/use-of-cookies/
Si té dubtes sobre aquesta Política de Cookies, pot contactar amb nosaltres a lopd@promocatindus.com.
Utilitzem cookies pròpies i de tercers per analitzar l'ús del lloc web i mostrar publicitat relacionada amb les teves preferències sobre la base d'un perfil elaborat a partir dels teus hàbits de navegació (per exemple, pàgines visitades). Política de galetes.